signup for latest news

No Fields Found.
 
 

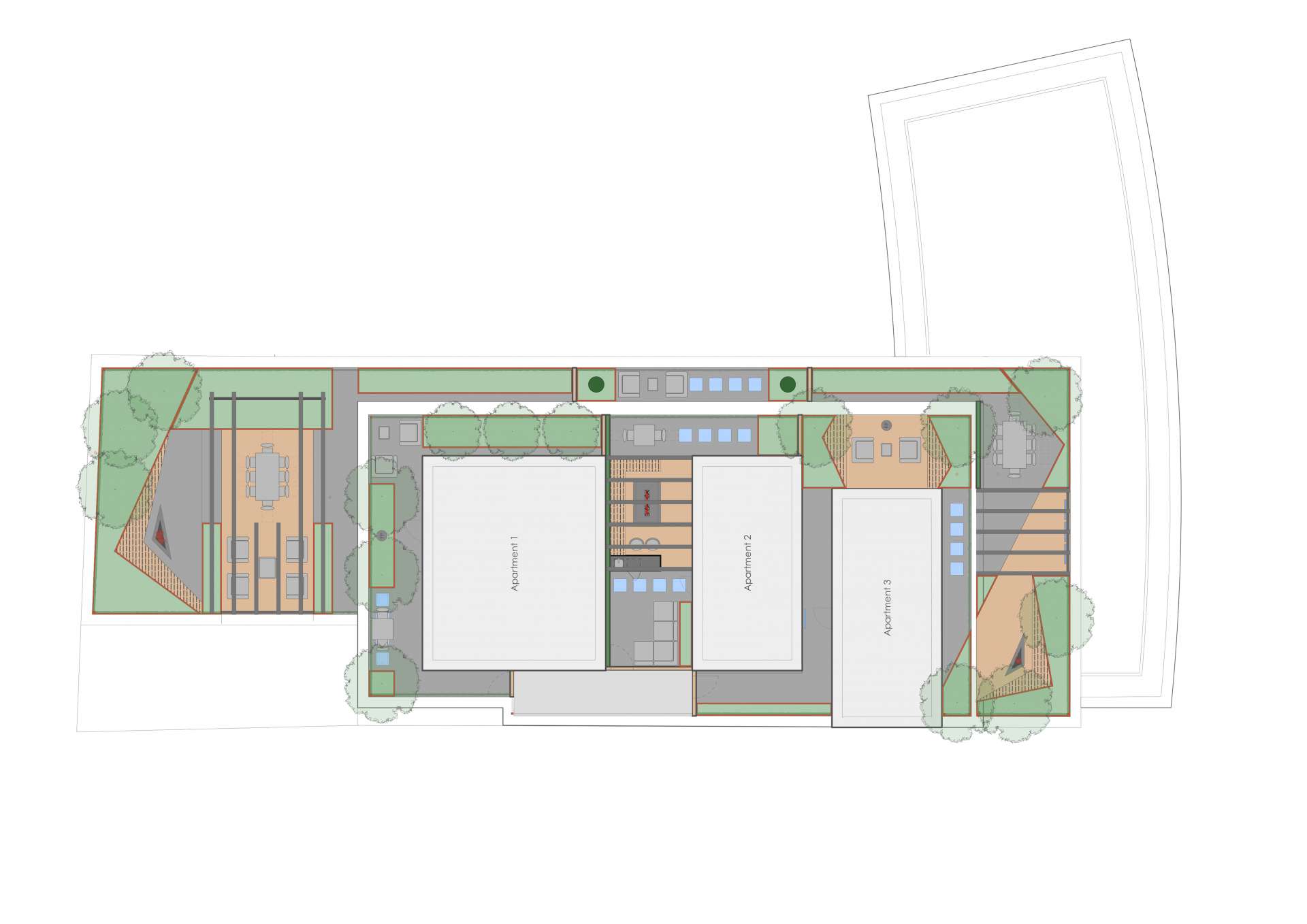
DRYSDALE STREET SHOREDITCH LONDON

RESIDENTIAL APPARTMENTS ROOF TERRACES WITHIN A MIXED USE DEVELOPMENT

Aralia Landscape Architects were approached by a National Developer to design an extremely clean and contemporary series of roof terraces to compliment the property’s architecture and serve as a natural extension to the residential apartment’s. Aralia Landscape Architects designed a series of roof terraces that complimented the buildings perfectly, making sure the interior and exterior roof terraces worked cohesively by carrying the internal finishes out into the external spaces. To provide the minimalism that the clients required, Aralia Landscape Architects kept to a simplistic yet stunning palette of materials and plants, with a clean linear geometric design.

Aralia Landscape Architects were also commissioned to re-design the ground floor courtyard area, that served as an entrance & access courtyard to both the offices and apartments. The design for this courtyard was created using the same language and materials of the roof terraces, in order to extend the feeling of cohesion. 

features include

Green Walls, Planters & Planting, Bike Racks, Natural Stone Paving.  Additional services included Garden Lighting & Irrigation.

t. 01279 721461 | e. info@aralia.org.uk

Aralia
Aralia
WordPress Video Lightbox